forming architecture llc

5420 ne sandycrest terrace #3 portland, or 97213

t 503 516 3970


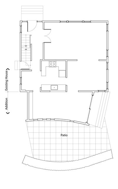
house addition

1 2 3 4 5 5


clark county permit office

1 2 3


tiburon office park courtyard

1 2 3 4 5


art institute of portland student commons

1 2


ne pdx remodel

1


june manor

1 2 3 4 5 6


ne pdx addition

1 2 3 4 5


commercial building remodel

1 2


highrise courtyard

1 2 3


bipartisan cafe

1


aristeia capital

1 2 3


2005-2020 forming architecture llc